Pilots Gig Restaurant

Return to Property search
  • TypeBusiness Property
  • LocationSt. Marys
  • Price £170,000
  • Bedrooms0

Property Overview

A LONG-ESTABLISHED, TOWN CENTRE RESTAURANT, FULLY EQUIPPED AND FURNISHED FOR ITS PRESENT USE, ALTHOUGH EQUALLY SUITABLE FOR A VARIETY OF COMMERCIAL USES INCLUDING RETAIL, GALLERY AND PROFESSIONAL OFFICES.  A TWO-BEDROOM APARTMENT IS ALSO AVAILABLE TO RENT, IF REQUIRED, BY SEPARATE NEGOTIATION. FULLY REDECORATED AND READY FOR THE 2017 SEASON.

This surprisingly spacious property is situated at the harbour end of Hugh Street, and therefore enjoying good footfall and a brisk passing trade. The property has a separate entrance opposite the Mermaid Inn, past which everyone entering or leaving St Marys Quay will pass, and therefore ideal for takeaway or other food uses. 

ALSO AVAILABLE TO RENT AT £12,000 PER ANNUM.    NEW INSTRUCTION

Property Floorplans

Click thumbnail to view large image
  • TypeBusiness Property
  • LocationSt. Marys
  • Price£170,000
  • Bedrooms0

Full Description

DESCRIPTION AND LOCATION

The Pilot’s Gig restaurant occupies extensive ground floor / semi-basement premises, with a main entrance out onto “The Bank”, with a secondary rear entrance opposite the Mermaid Inn. The current owners have an arrangement with the owner of the nearby chemist shop for a signage, lighting and a menu cabinet on their rear wall, opposite the Mermaid.

The restaurant has been part of Scilly’s food scene for nearly 50 years, and offers a main dining area of great character, with its exposed granite walls, beamed ceiling and signature “Pilot Gig” boats built into the walls. The property has a large commercial kitchen, wine cellar, various store rooms and male and female wc’s. The property has been freshly painted and refurbished ready for the 2017 season.

Subject to the necessary consent, we suggest the property could lend itself to sub-division, having a retail /gallery / café / restaurant at the front, and a takeaway counter at the rear – ideal for people heading off-island or out on the Scillonian.

With the option of a two-bedroom apartment to rent, literally a “stone’s throw” from the restaurant, this is an unusual opportunity to acquire a home and business together. Viewing highly recommended.


ACCOMMODATION

Dimensions are approximate. The condition and operation of appliances or services referred to have not been tested by Sibleys Island Homes and should be checked by prospective lessees.

From The Bank, the square close to St Marys Quay, an external granite staircase leads down to a multipaned door opening into:

RECEPTION PORCH  4.70m x 1.20m.
Having quarry-tiled flooring, and stained glass window by local artist Oriel Hicks, depicting a local Pilot Gig. Multipaned stable door (again with stained glass inserts by the same artist, this time featuring a sailing ship and lighthouse), opening into:

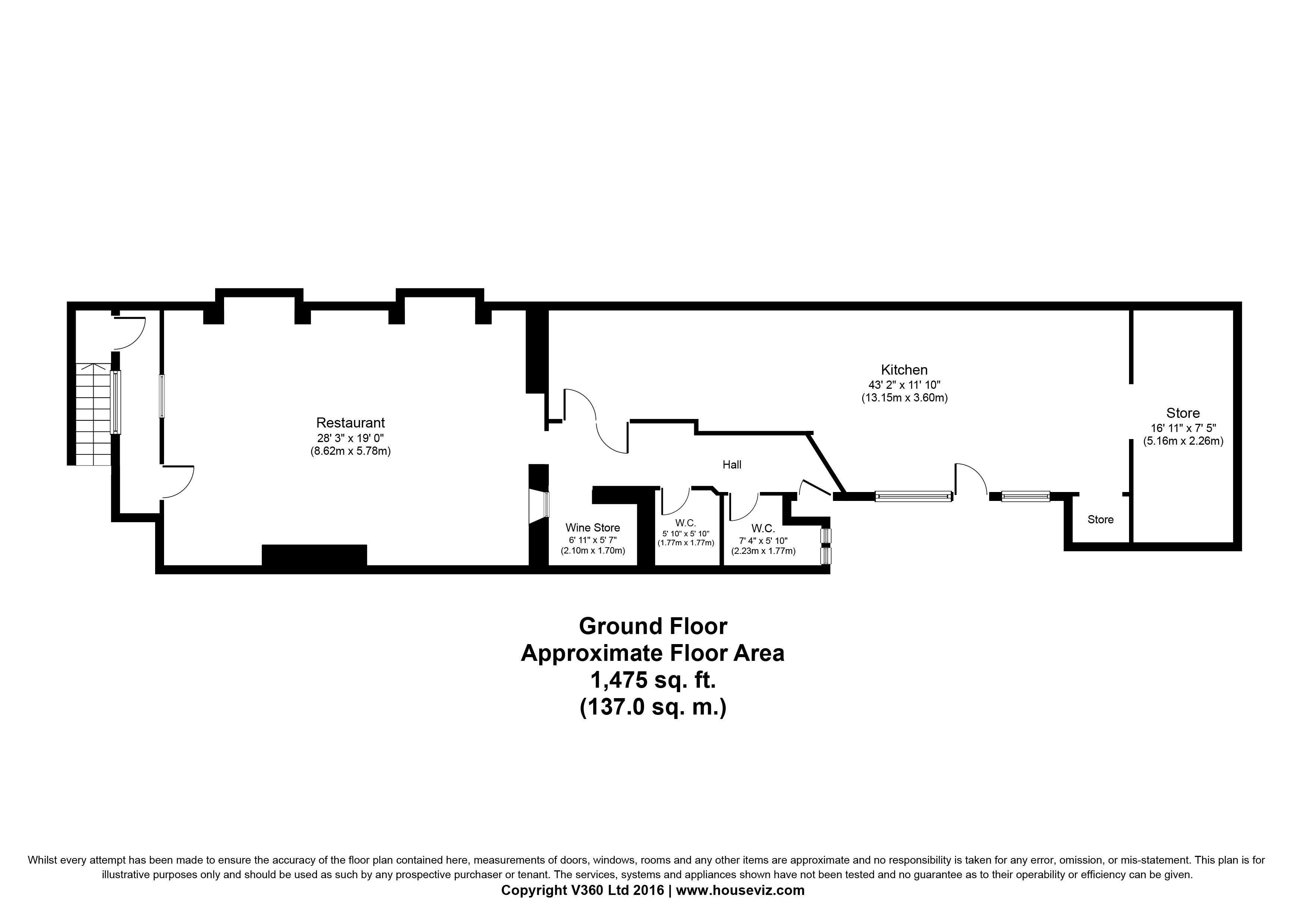
RESTAURANT  8.62m x 5.78m.
A highly characterful dining area, full of marine and other artifacts, having beamed ceiling, pine-clad walls to dado height with exposed granite above. There are two large granite fireplaces, one with antique cast-iron range cooker inset. The main feature of the room must, however, be the bow and stern of two local Pilot Gigs, the Gipsy and Zelda, which have been built into the walls above fitted alcove seating. The restaurant has seating for up to 40 covers, usually operating on two sittings per night, and is equipped with a bar counter, having fitted single bowl sink unit and Casio electronic till.

The rear of the restaurant opens onto a rear corridor, with access to the kitchen, wine cellar, wc’s and outside.

KITCHEN  13.15m x 3.60m max, 2.27m min.
A large, fitted & equipped commercial kitchen, having ceramic tiled floor, part-tiled walls and well-lit with fluorescent lighting. A full inventory will be prepared prior to sale, although the principal appliances include:

Stainless steel “Blue Seal” 8-burner twin oven gas range cooker
Large commercial grill
Stainless steel commercial electric deep fat fryer
Full canopy extractor system over, in stainless steel
Gas Interlock system
10 x Stainless Steel Food Preparation Tables with low-level shelf
Electric meat slicer
Stainless steel plate warmer
Vestfrost upright fridge
“Flygo” insect killer
Stainless steel handwash basin
“Maidaid Halcyon” commercial dishwasher
Double bowl stainless steel sink unit
“Samsung” commercial microwave oven
“True” upright fridge stainless steel
Walk-in double commercial fridge
3 x chest freezers
“Dualit” and “Magimix” toasters

Off the kitchen are two stores:

STORE ONE  5.16m x 2.26

STORE TWO  1.35m x 1.12m

WINE CELLAR  2.10m x 1.70m
Located immediately behind the dining area, having fitted shelving, wine racks and “Esta” upright fridge.

LADIES WC  2.20m x 1.77m
Having a vanity wash hand basin, with tiled splashbacks, and cubicle with low-level wc, half-tiled walls and tiled floors. 

GENTS WC  2.20m x 2.27m max, 1.12m min
Having a vanity wash hand basin, with tiled splashbacks, and cubicle with low-level wc, half-tiled walls and tiled floors. 


OUTSIDE

There is a small yard area outside the kitchen, with under-stairs storage / regulator for the propane cylinders that supply the cookers.

SERVICES
We understand that mains electricity, water, drainage and Telecom are connected to the property.

LOCAL AUTHORITY
Council of the Isles of Scilly, Town Hall, St Mary's, Isles of Scilly, TR21 0LW. Tel: 01720 422537.

The property is assessed for Business Rates as follows:
Reference: 80102
Description: Restaurant & Premises
Rateable Value: £8,200 (draft 2017)

TENURE
The restaurant is owned leasehold under a long lease (999 years at a peppercorn rental).

For applicants interested in taking an occupational lease, a new 6-year lease will be offered, at an initial rental of £12,000 per annum, on Internal Repairing and Insuring terms, subject to upward only review after 3 years to £15,000 per annum.

ENERGY PERFORMANCE CERTIFICATE

The EPC can be downloaded at:
https://www.ndepcregister.com/reportSearchAddressListReports.html?id=ad9f3f1caeb88750f0591fb2f90d96fd


VIEWING
Strictly by arrangement with the Agents, SIBLEYS ISLAND HOMES, Porthcressa, St Mary's, Isles of Scilly, TR21 0JX. Tel: 01720 422431. Fax: 01720 423334.

  NOTE
Applicants are requested to make appointments to view and conduct negotiations through the Agents. No responsibility can be accepted for any expense incurred by fruitless journeys. Sibleys Island Homes for themselves and for the vendors or lessees of this property whose agents they are give notice that:
  • the particulars are set out as a general outline only for the guidance of intending purchasers or lessees, and do not constitute, nor constitute part of, an offer or contract;
  • all descriptions, dimensions, references to condition and necessary permissions for use and occupation, and all other details are given without responsibility and any intending purchasers or tenants should not rely on them as statements or representations of fact but must satisfy themselves by inspection or otherwise as to the correctness of each of them;
  • no person in the employment of Sibleys Island Homes has any authority to make or give any representation or warranty whatever in relation to this property.

Location Map

Register your interest in Pilots Gig Restaurant by filling out your details below and we will be in touch...

Subscribe to Sibleys News, for the latest properties, holidays and info from the Scilly’s